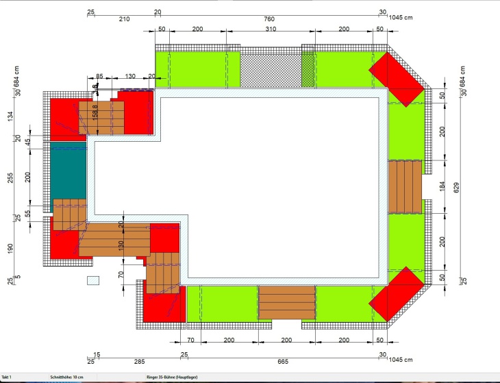
Ringer, 3S-Bühne

EUR 535,50

inkl. USt. zzgl. Versandkosten

Schalungslager für EuroSchal. Sie müßen jetzt noch ein Schalungsprogramm Wand Vollversion oder Update hinzufügen.