Mayer Schaltechnik, MiniMAX Alu Träger

EUR 535,50

inkl. USt. zzgl. Versandkosten

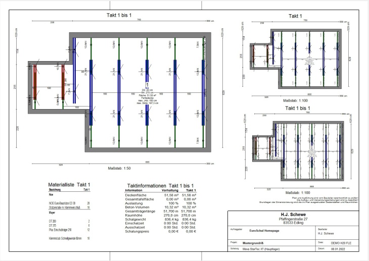
Schalungslager für EuroSchal. Sie müßen jetzt noch ein Schalungsprogramm Wand Vollversion oder Update hinzufügen.